土地 長浜市湖北高田町
所在地
長浜市湖北高田町
568万円
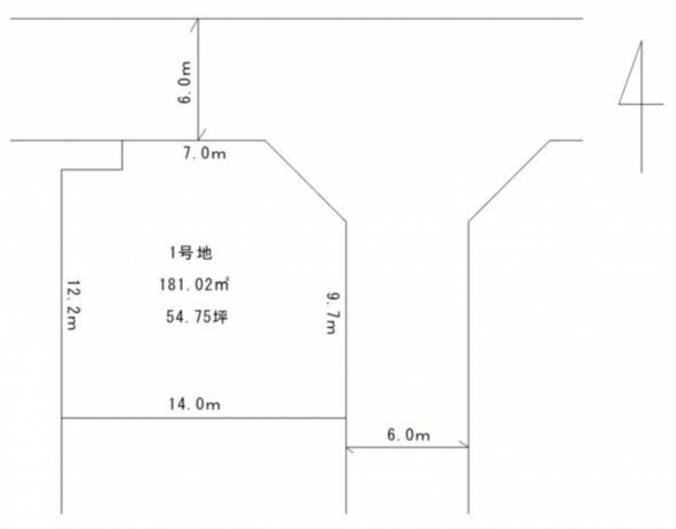
54.75坪
建築条件無し!!
三方角地
フレンドマート湖北店 約2,200m
セブンイレブン湖北町速水店 約1,200m
湖北郵便局 約1,300m
長浜市役所湖北支所 約970m
物件概要
- 交通
-
北陸線 河毛駅 まで 徒歩20分
- 接道状況
-
北側 公道6m 間口約7.2m
東側 公道6m 間口約15.3m - 土地面積
- 公簿 181.02㎡ (54.75坪)
- 建ぺい率
- 70%
- 容積率
- 200%
- 土地権利
- 所有権
- セットバック
- 無し
- 小学校区
- 速水 ( 720m )
- 中学校区
- 湖北 ( 730m )
- 私道負担
- 無
- 建築条件
- なし
- 地目
- 宅地
- 現況
- 更地
- 引渡時期
- 即時
- 上水道
- 公共
- 下水道
- 公共
- ガス
- 都市計画
- 非線引区域
- 用途地域
- 定無
- 設備・条件
- 備考
- ・上下水道負担金込み
- 取引態様
- 仲介



